|  |
 |  | 

ГСК23 3+1 С
|
| |
| |
Четырехполюсные УЗИП класса испытаний II+III комбинированного типа для сетей с системой заземления типа TN-S, TT. Uo = 230 В 50 Гц. Imax(8/20)= 20 кА. Выполнены по схеме для защиты от поперечных перенапряжений в цепях "провод - провод". | |
|
Устройства серии ГСК23-230/20 3+1 C испытаны
в соответствии с классами испытаний II и III, согласно ГОСТ IEC 61643-11. Устанавливаются после УЗИП класса I в пределах 1 - 3 зон
молниезащиты (в соответствии с ГОСТ Р МЭК 62305-1 и СО-153-34.21.122) в распределительные щиты.
При
расстоянии от точки установки УЗИП класса испытаний II+III до
защищаемого оборудования менее 5 м по кабелю, необходимости в установке
дополнительного устройства защиты класса испытаний III в
непосредственной близости от оборудования не возникает.
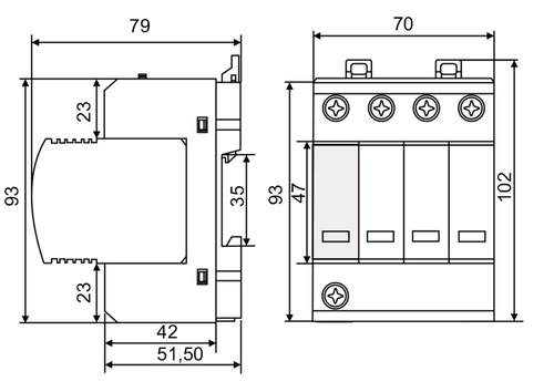
ГСК23-230/20 3+1 С, ТУ 3428-002-79740390-2007 – серия четырехполюсных УЗИП класса испытаний II+III на основе оксидно-цинковых варисторов и газонаполненного разрядника.
• Предназначены для защиты фазных и нулевого проводников от противофазных (поперечных) перенапряжений в цепях L/N, N/PE .
• Состоят из сменных варисторных модулей, модуля с разрядником и базы для подключения к сети и креплению к DIN-рейке 35 мм.
• Способны отводить импульсы тока Imax(8/20) = 20 кА, Uoc(1.2/50)= 6 кВ.
• Выпускаются на номинальное напряжение системы Uо= 230/400 В 50 Гц.
• Применяются в сетях с системами заземления типа TN-S, TT.
• Визуальный контроль рабочего состояния УЗИП
проводится с помощью индикаторов расположенных на сменных модулях. В
исправном состоянии индикатор имеет зеленый цвет, в аварийном - красный.
• Для удаленного контроля ГСК23-230/20 3+1 С дополнительно cнабжен “сухим” контактом дистанционной сигнализации.
| |
|
| |
Структура наименования ГСК23-230/20 3+1 С:
ГРОЗОСТОП® - торговая марка выпускаемых АО "Хакель" УЗИП;
ГСК - серия устройств для защиты оборудования распределительных сетей до 1000 В комбинированного типа;
23 - класс испытаний УЗИП в соответствии с ГОСТ IEC 61643-11;
230 - номинальное напряжение системы, Uо AC;
20 - максимальный разрядный ток, Imax(8/20);
3+1 - количество полюсов и схема подключения УЗИП;
C - наличие дистанционной сигнализации рабочего состояния.
Пример: ГРОЗОСТОП® ГСК23-230/20 3+1 - УЗИП производства АО "Хакель" для защиты оборудования распределительных сетей до 1000 В комбинированного типа, УЗИП класса испытаний II+III в соответствии с ГОСТ IEC 61643-11, Uо=230 В АС, Imax(8/20)=20 кА, четыре полюса, схема включения для защиты от поперечных перенапряжений.
| | | |
| |
| |
| |
| |
| |
| |
|
сертификат соответствия системы добровольной сертификации ИНТЕРГАЗСЕРТ (для серии (LT))
|
сертификат соответствия требованиям ТР ТС 004/2011 «О
безопасности низковольтного оборудования»
|
сертификат соответствия системы менеджмента качества требованиям СТО Газпром 9001-2012
|
сертификат соответствия системы менеджмента качества требованиям ГОСТ Р ИСО 9001-2015
|
сертификат соответствия системы менеджмента качества требованиям ISO 9001:2015
| |
| |
|
Теория и особенности применения: | |
| |
|
При измерениях, производимых на
электроустановке, когда методикой измерений предусматриваются испытания
высокими напряжениями (например, проверка сопротивления изоляции)
необходимо отключать УЗИП от электроустановки. Несоблюдение этого
правила приведет к искажению результатов измерения или в худшем случае к
выходу из устройства строя. |
|
|
|
Дополнительные принадлежности: | |
| |
| |
| |
|
Технические характеристики:|
Технические характеристики
|
| |
|
| |
Количество полюсов
|
4
| |
Класс испытаний УЗИП в соответствии с ГОСТ IEC 61643-11
|
II+III
| |
Вид защиты |
L/N, N/PE
| |
Номинальное напряжение системы / 50 Гц, UO
|
230/400 В
| |
Максимальное длительное рабочее напряжение / 50 Гц, UC |
275 B
| |
Максимальный разрядный ток L/N, N/PE, Imax(8/20)
|
20 кА
| |
Номинальный разрядный ток L/N, N/PE, In(8/20)
|
10 кА
| |
Испытательный импульс L/N, N/PE, Uoc(1.2/50)
|
6 кВ
| | Уровень напряжения защиты L/N при Imax, Up | < 1.1 кВ | |
Уровень напряжения защиты L/N при Uoc, Up
|
< 0.8 кВ
| | Уровень напряжения защиты N/PE при Imax, Up | < 0.9 кВ | |
Уровень напряжения защиты N/PE при Uoc, Up
|
< 1.3 кВ
| |
Временное перенапряжение L/N, UT |
335 В/ 5 с
| |
Временное перенапряжение N/PE, UT
|
1200 В/ 0,2 с
| |
Номинал защитного предохранителя |
25 A gG
| |
Номинальный ток короткого замыкания, ISCCR
|
25 кА
| |
Рабочая температура |
-40...+80 °C
| |
Время срабатывания L/N, tA |
< 25 нс
| |
Время срабатывания N/PE, tA
|
< 100 нс
| |
Степень защиты в соответствии с ГОСТ 14254-2015 |
IP20
| |
Монтаж |
DIN-рейка 35 мм
| |
Cечение присоединяемых проводников, не более
|
6 мм²
| |
Материал корпуса |
Polyamide PA6
| |
Cрок эксплуатации |
не менее 10 лет
| |
Контакты дистанционной сигнализации для моделей с С
|
| |
- сечение проводника
|
| - электрическая прочность
| 3,75 кВэфф
| - сопротивление изоляции
| 2х107 Ом
| |
- макс. коммутируемый ток AC/DC
|
~ 0.5/0.1 A
| |
- макс. коммутируемое напряжение AC/DC
|
250 В
| |
Масса |
472 г
| |
Номер по каталогу |
230 005
| |
|
230 004
|
|
|
Серия УЗИП с индексом (LT) сертифицирована в системе добровольной
сертификации ИНТЕРГАЗСЕРТ ПАО «Газпром» по схеме 1d. Данные устройства испытаны на соответствие техническим регламентам ПАО «Газпром» и периодически подвергаются
тестированию и инспекционному контролю независимых экспертов.
УЗИП с
индексом (LT) предназначены для эксплуатации в микроклиматических
районах с диапазоном температур от -60°С до +80°С и на них
распространяется увеличенный гарантийный срок эксплуатации до 5 лет.
|
|
|
Технические характеристики
|
| |
ГСК23-230/20 3+1 (LT)
| |
Рабочая температура |
-60...+80 °C
| |
Гарантийный срок эксплуатации, год
|
5
| |
Номер по каталогу |
230 105
| |
|
230 104 |
 |  |  |
 |
 |