|  |
 |  | 

PIV720 DS - СНЯТО С ПРОИЗВОДСТВА
|
|
В
связи с обновлением модельного ряда с 28.06.2021 г. сняты с серийного
производства УЗИП PIV720, PIV720 (LT), PIV720 DS, PIV720 DS (LT). По
вопросам возможности изготовления обращайтесь к сотрудникам коммерческого
отдела.
Извещение: ХКР.023.21 ИИ
от 28.06.2021 г. | | Однополюсные УЗИП класса испытаний I
ограничивающего типа на основе оксидно-цинковых варисторов, применяются
для защиты фазных проводов в системах переменного тока и полюсов в
системах постоянного тока при кабельном вводе. Uo = 720/930 В АС/DC. Iimp (10/350) = 12.5 кА. | |
|
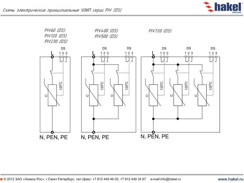
Устройства серии PIV720 (DS) соответствуют УЗИП класса испытаний I, согласно ГОСТ IEC 61643-11. Устанавливаются в пределах 0А(В) - 1 зон молниезащиты (в соответствии с ГОСТ Р МЭК 62305-1 и СО-153-34.21.122). Предназначены
для защиты оборудования в низковольтных силовых распределительных
системах переменного тока до 1000 В и постоянного тока до 1500 В при кабельном вводе электропитания.
PIV720 (DS), ТУ 3428-002-79740390-2007 – серия УЗИП класса I на основе оксидно-цинковых варисторов.
• Предназначены
для защиты фазных проводников L/N, L/PEN, L/PE в системах переменного
тока и полюсов L-/L+, L+/PE, L-/PE в системах постоянного тока при кабельном вводе.
• Выпускаются на номинальное напряжение системы Uo = 720/930 В АС/DC.
• Способны отводить импульсы тока Iimp (10/350)= 12,5 кА.
• Варисторы снабжены терморасцепителями.
• Применяются в сетях переменного и постоянного тока с системами заземления типа TNC, TN-S, TT и IT. • Контроль рабочего состояния УЗИП осуществляется с помощью индикатора красного цвета. В исправном состоянии индикатор утоплен, в аварийном - выдвинут.
• PIV DS дополнительно cнабжены “сухими” контактами дистанционной сигнализации. |
| |
| |
| |
| |
| |
| |
| |
| |
| |
| |
| |
|
|
cертификат соответствия требованиям ТР ТС 004/2011 «О
безопасности низковольтного оборудования»
|
сертификат соответствия системы менеджмента качества требованиям СТО Газпром 9001-2012
|
сертификат соответствия системы менеджмента качества требованиям ГОСТ Р ИСО 9001-2015
|
сертификат соответствия системы менеджмента качества требованиям ISO 9001:2015
|
Теория и особенности применения:
Дополнительные принадлежности:
Технические характеристики|
Технические характеристики
|
|
|
| |
Класс испытаний УЗИП в соответствии с ГОСТ IEC 61643-11
|
|
I
|
I
| |
Вид защиты
|
|
L/N, L/PEN, L/PE
|
L/N, L/PEN, L/PE
| |
Номинальное напряжение системы |
UO |
720/930 В AC/DC
|
| |
Макс. длительное рабочее напряжение
|
UC |
860/1100 B AC/DC
|
860/1100 B AC/DC
| |
Импульсный ток (10/350)
| Iimp |
12,5 кА
|
12,5 кА
| |
Коммутируемый заряд
| Q
|
6,25 A×с
|
6,25 A×с
| |
Удельная энергия
| W/R
|
39 кДж/Ом
|
39 кДж/Ом
| |
Временное перенапряжение
| Uт
|
1044 В / 5 с
|
1044 В / 5 с
| |
Уровень напряжения защиты при Iimp
| Up
|
< 3,2 кВ
|
< 3,2 кВ
| |
Максимальный разрядный ток (8/20) |
Imax |
100 кА |
|
Номинальный разрядный ток (8/20) |
In |
20 кА |
| |
Номинал защитного предохранителя
|
|
160 A gG
|
160 A gG
| |
Номинальный ток короткого замыкания
|
|
60 кA
|
60 кA
| |
|
tA |
|
| |
Рабочая температура |
υ |
-40...+80 °C |
-40...+80 °C | |
Степень защиты в соответствии с ГОСТ 14254 |
|
IP20 |
IP20 | |
Монтаж |
|
DIN-рейка 35 мм |
DIN-рейка 35 мм | |
Cечение присоединяемых проводников |
|
|
| |
- жесткий одножильный
|
|
25 мм²
|
25 мм²
| |
- гибкий множильный
|
|
16 мм²
|
16 мм²
| |
Материал корпуса |
|
Polyamide PA6 |
Polyamide PA6 | |
Цвет корпуса |
|
синий |
| |
Cрок эксплуатации |
|
не менее 10 лет
|
не менее 10 лет
| |
Контакты дистанционной сигнализации для моделей с DS
|
|
|
| |
электрическая прочность
|
|
3,75 кВэфф
|
-
| |
- сопротивление изоляции
|
|
2 x 107 Ом
|
-
| |
- макс. коммутируемый ток
|
|
~ 0,5 A
|
-
| |
- макс. коммутируемое напряжение
|
|
~ 250 В
|
- | |
Масса
|
|
385 г
|
385 г
| |
Номер по каталогу |
|
10 027 |
|
 |  |  |
 |
 |