|  |
 |  | 

ГСВ2 3Ф С
|
| |
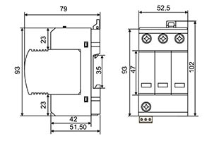
| Трехполюсные УЗИП класса испытаний II ограничивающего типа. Применяются для защиты оборудования силовых цепей фотоэлектрических систем. Состоят из трех сменных варисторных модулей и базы для подключения к сети и креплению к DIN-рейке 35 мм. Uс = 600, 800, 1000 В DC. Imax(8/20) = 40 кА.
| |
| |
Устройства серии ГРОЗОСТОП® ГСВ2-*/3Ф С соответствуют УЗИП класса испытаний II, согласно ГОСТ IEC 61643-11. Устанавливаются в пределах 1 - 2 зон молниезащиты (в соответствии с ГОСТ Р МЭК 62305-1 и CO-153-34.21.122-2003). Предназначены для защиты силовых цепей фотоэлектрических систем от
импульсных перенапряжений вызванных коммутацией индуктивных и емкостных
нагрузок, короткими замыканиями в распределительных электрических сетях
высокого и низкого напряжения или как вторая ступень защиты в случае
удара молнии в систему молниезащиты объекта или линию электропередач.
ГСВ2-*/3Ф С, ТУ 3428-002-79740390-2007 – серия трехполюсных УЗИП класса испытаний II на основе оксидно-цинковых варисторов.
• Предназначены для защиты силовых цепей L-/PE, L+/PE, L-/L+.
• Состоят из сменных
варисторных модулей, подлежащих замене в случае повреждения, и базы для
подключения к сети и креплению к DIN-рейке 35 мм.
• Способны отводить импульсы тока Imax (L/PE)(8/20)= 40 кА.
• Выпускаются на максимальное длительное рабочее напряжение Uс = 600, 800, 1000 В DC.
•
Визуальный контроль рабочего состояния УЗИП проводится с помощью
индикаторов расположенных на варисторных модулях. В исправном состоянии
индикаторы имеют зеленный цвет, в аварийном - красный.
• Для удаленного контроля ГСВ2-*/3Ф С дополнительно cнабжены “сухими” контактами дистанционной сигнализации.
| |
|
| |
Структура наименования ГСВ2-*/3Ф С:
ГРОЗОСТОП® - торговая марка выпускаемых АО "Хакель" УЗИП;
ГСВ - серия устройств для защиты оборудования распределительных сетей до 1000 В ограничивающего типа;
2 - класс УЗИП в соответствии с ГОСТ IEC 61643-11;
* - максимальное длительное рабочее напряжение, Uc DC;
3 - количество полюсов УЗИП;
Ф - УЗИП предназначено для защиты оборудования силовых цепей фотоэлектрических систем;
C - наличие дистанционной сигнализации рабочего состояния.
Пример: ГСВ2-600/3Ф С - УЗИП производства АО "Хакель" для защиты оборудования силовых цепей фотоэлектрических систем ограничивающего типа, УЗИП класса испытаний II в соответствии с ГОСТ IEC 61643-11, Uс =600 В DС, Imax(8/20)=40 кА, три полюса. Для удаленного контроля рабочего состояния УЗИП дополнительно cнабжены “сухими” контактами дистанционной сигнализации. | | | |
| |
| |
| |
| |
| |
| |
|
сертификат соответствия системы добровольной сертификации ИНТЕРГАЗСЕРТ (для серии (LT))
|
сертификат соответствия требованиям ТР ТС 004/2011 «О
безопасности низковольтного оборудования»
|
сертификат соответствия системы менеджмента качества требованиям СТО Газпром 9001-2012
|
сертификат соответствия системы менеджмента качества требованиям ГОСТ Р ИСО 9001-2015
|
сертификат соответствия системы менеджмента качества требованиям ISO 9001:2015
| |
| |
Теория и особенности применения: | |
| |
|
|
|
|
Дополнительные принадлежности: | |
| |
| |
| |
|
Технические характеристики:
|
Технические характеристики
|
|
|
| |
|
|
| |
Количество полюсов
|
3
|
3
|
3
| |
Класс испытаний УЗИП по
ГОСТ IEC 61643-11
|
II |
|
| |
Вид защиты |
L-/PE, L+/PE, L-/L+ |
L-/PE, L+/PE, L-/L+ |
L-/PE, L+/PE, L-/L+ | |
Макс. длительное рабочее напряжение, UC
|
|
|
| |
Напряжение холостого хода фотоэлементов, Uocstc |
500 В DС
|
730 В DС
|
875 В DС
|
Номинальный ток короткого замыкания, ISCCR
|
100 А
|
100 А
|
100 А
|
Максимальный разрядный ток, Imax(8/20) |
|
|
|
Номинальный разрядный ток, In(8/20) |
15 кА
|
15 кА |
15 кА | |
Уровень напряжения защиты при In, Up |
|
|
| Вид климатического исполнения по ГОСТ 15150-69
| У2.1**
| У2.1**
| У2.1**
| |
Рабочая температура |
-40...+80 °C |
|
| |
Время срабатывания, tA |
< 25 нс |
< 25 нс | < 25 нс | |
Степень защиты по
ГОСТ 14254-2015 |
IP20 |
|
| |
Монтаж | DIN-рейка 35 мм |
DIN-рейка 35 мм |
DIN-рейка 35 мм | |
Cечение присоединяемых проводников, макс. значения
|
|
|
| |
- жесткий одножильный |
|
|
35 мм²
| |
- гибкий многожильный |
|
|
| |
Материал корпуса |
Polyamide PA6 |
Polyamide PA6 | Polyamide PA6 | |
Срок службы | не менее 10 лет |
не менее 10 лет |
не менее 10 лет | |
Контакты дистанционной сигнализации для моделей с С
|
|
|
| |
- сечение проводника
| 1 мм² |
1 мм² |
1 мм² | |
- макс. коммутируемый ток AC
| ~ 0,5 A |
~ 0,5 A | ~ 0,5 A | |
- макс. коммутируемое напряжение AC
|
~ 250 В |
~ 250 В |
~ 250 В | |
- макс. коммутируемый ток DC
| 0,1 A |
0,1 A | 0,1 A | |
- макс. коммутируемое напряжение DC
|
250 В |
250 В |
250 В | |
Масса, не более
|
|
|
| |
Номер по каталогу | 200 018
| 200 020
| 200 022
| |
| 200 019
| 200 021
| 200 023
|
|
|
Серия УЗИП с индексом (LT) сертифицирована в системе добровольной
сертификации ИНТЕРГАЗСЕРТ ПАО «Газпром» по схеме 1d. Данные устройства испытаны на соответствие техническим регламентам ПАО «Газпром» и периодически подвергаются
тестированию и инспекционному контролю независимых экспертов.
УЗИП с
индексом (LT) предназначены для эксплуатации в микроклиматических
районах с диапазоном температур от -60°С до +80°С и на них
распространяется увеличенный гарантийный срок эксплуатации до 5 лет.
|
|
|
Технические характеристики
|
|
|
| |
|
|
| |
Рабочая температура |
-60...+80 °C |
|
| |
Гарантийный срок эксплуатации, год
| 5 |
5 |
5 | |
Номер по каталогу | 200 018
| 200 020
| 200 022
| |
| 200 019
| 200 021
| 200 023
|
 |  |  |
 |
 |